Hallo,
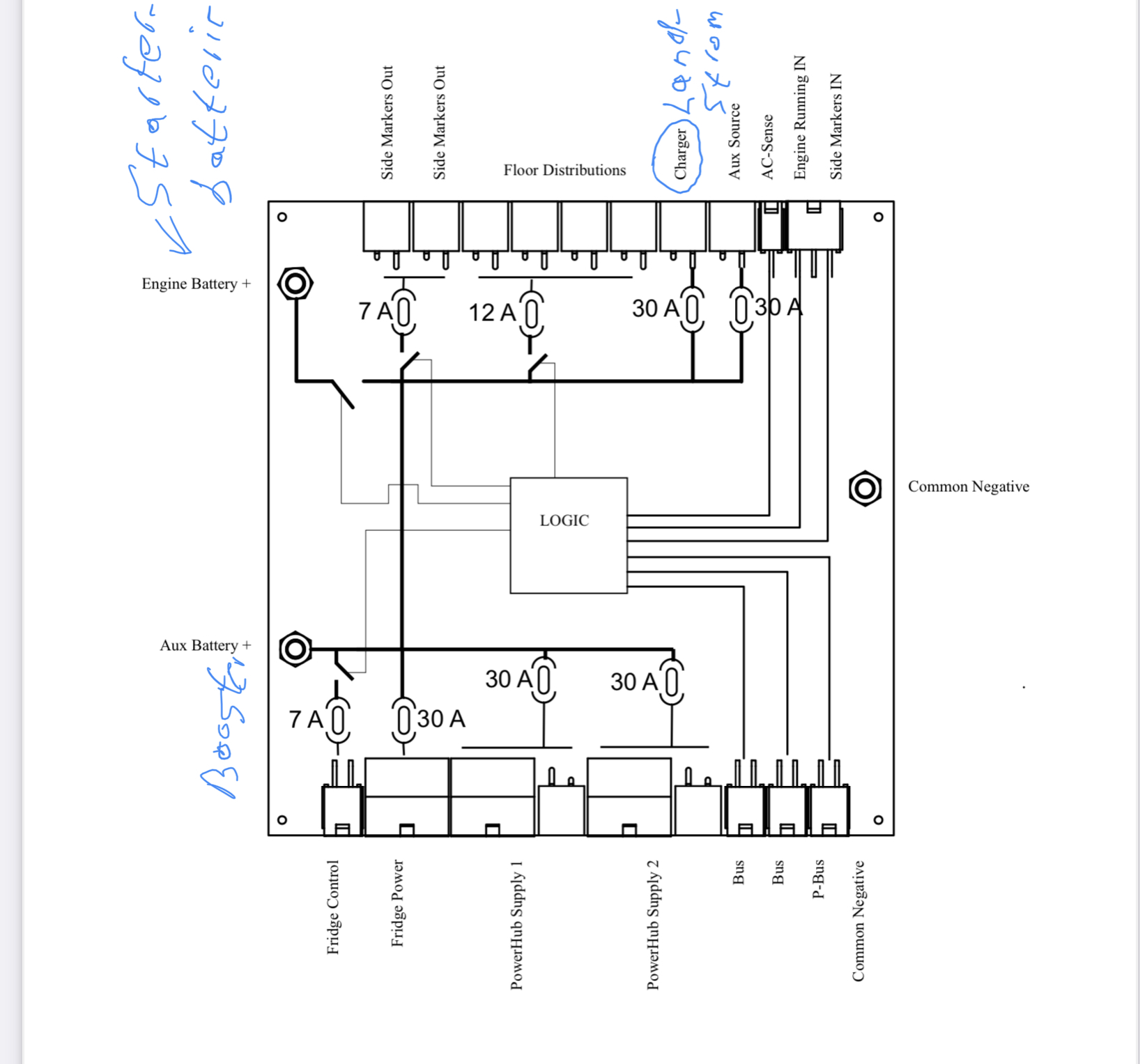
kann mal jemand auf meinen Plan für den Einbau von zwei LifePo4, Booster, neues Ladegerät und Standby Charger schauen ob das So passt.
Wäre sehr dankbar
2 LifePo4 und div. Komponenten im Ahorn Thema ist als GELÖST markiert
Re: 2 LifePo4 und div. Komponenten im Ahorn
Soweit ok, die 30Amp. Sicherung zwischen Ladegerät und dem Power Verteiler brauchst du aber nicht, diese in im Power Verteiler drin ( F1 30A Schutz der Eingangsleitung BATTERIE-LADEGERÄT CT8) , siehe Anleitung.
Re: 2 LifePo4 und div. Komponenten im Ahorn
Danke Dir, dann nehme ich die Sicherung raus und dann passt es hoffentlich.
Wieviel mm2 würdest du für die Verbindung zwischen beiden Batterien nehmen und da auch eine Sicherung?
Der Abstand unter der Sitzkonsole zur Sitzunterfläche ist knapp. Meinst du das passt noch? Ohne Pole mit nur Schrauben ist soviel Platz wie auf Bild.
Wieviel mm2 würdest du für die Verbindung zwischen beiden Batterien nehmen und da auch eine Sicherung?
Der Abstand unter der Sitzkonsole zur Sitzunterfläche ist knapp. Meinst du das passt noch? Ohne Pole mit nur Schrauben ist soviel Platz wie auf Bild.
Zuletzt geändert von Ahorner am 26.04.2022, 10:33, insgesamt 1-mal geändert.
Re: 2 LifePo4 und div. Komponenten im Ahorn
Bei 40Amp. würde ich 16mm² nehmen. Wenn der Abstand knapp ist gff. ein Dünnes Brett zuschneiden und über die Batterie legen, das die Kontakte auf keinen Fall an Metall anstoßen können.
Ansonnste mail in die Bedienungsanleitung nachsehen, ob da etwas zu den Drahtstärken steht. Etwas dicke schadet nicht. Bei zu dünnen Kabeln besteht die Gefahr eine Kabelbrandes, wenn diese zu heiß werden.
Ansonnste mail in die Bedienungsanleitung nachsehen, ob da etwas zu den Drahtstärken steht. Etwas dicke schadet nicht. Bei zu dünnen Kabeln besteht die Gefahr eine Kabelbrandes, wenn diese zu heiß werden.
Re: 2 LifePo4 und div. Komponenten im Ahorn
Was meinst du bei 40 A würde ich 16 mm2 nehmen. Hab ich doch. Hatte lediglich zurück von der Aufbau 32 genommen. Oder was meinst du?
Ja überlege Holz oder irgendwie eine Gummimatte unter den Sitz zu kleben. Können die Anschlüsse heiss werden? Ich muss doch nichtunnbedigtdue Pole nehmen, die Schrauben reichen doch oder?
Eine Frage die sich mir noch stellt, wie befestige ich die beiden Batterien nebeneinander an der Stelle.
Jemand eine Idee?
Ja überlege Holz oder irgendwie eine Gummimatte unter den Sitz zu kleben. Können die Anschlüsse heiss werden? Ich muss doch nichtunnbedigtdue Pole nehmen, die Schrauben reichen doch oder?
Eine Frage die sich mir noch stellt, wie befestige ich die beiden Batterien nebeneinander an der Stelle.
Jemand eine Idee?
Re: 2 LifePo4 und div. Komponenten im Ahorn
Ja, die Schrauben sind sogar besser, wenn nicht so viele Übergangswiderstände drin sind, um so besser. Da wird nichts heiß.
Re: 2 LifePo4 und div. Komponenten im Ahorn
Danke Euch. Ja werde wahrscheinlich Holz oder Kunsstoffplatte zur Sicherheit unter den Sitz kleben.
Wo ich ehrlich gesagt gerade noch dran hänge, ob 16 mm2 oder 35 mm2 bei knapp 3 Metern Kabellängen von der Aufbau zu. EBL und der Sicherungsgröße.
In der Anleitung vom EBL steht da leider nichts. Was meint ihr?
Wo ich ehrlich gesagt gerade noch dran hänge, ob 16 mm2 oder 35 mm2 bei knapp 3 Metern Kabellängen von der Aufbau zu. EBL und der Sicherungsgröße.
In der Anleitung vom EBL steht da leider nichts. Was meint ihr?
Re: 2 LifePo4 und div. Komponenten im Ahorn
25mm² sollten auch ausreichen und sind ein guter Kompromiss zwischen 16 und 35mm².

